Pathways Create: Missouri City Parking Lot

CityRise Missouri City has reached a pivotal moment. Rapid growth and facility challenges have created urgent needs that must be addressed for the campus to keep reaching its community effectively. Two major projects will allow us to meet these needs and create the space required for continued gospel impact. Our first project focuses on space for parking.
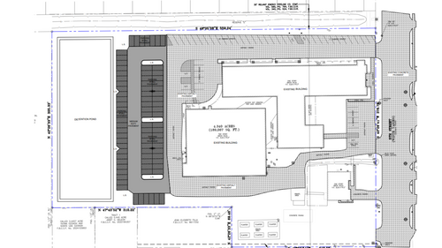
New Parking Lot
We are planning a crucial $650,000 investment to construct a new, 80-space paved parking lot at our CityRise Missouri City campus. This improvement is a direct response to God's incredible blessing of growth. This campus’s community has flourished from 75 people to over 350 each weekend. The need is tangible and urgent, as nearly 50 vehicles are forced to park on the grass. This is more than asphalt and lines—it’s a foundational investment in the future of our ministry. By creating welcoming and accessible space, we ensure that every person God calls to this vibrant, growing family finds a clear "pathway" in. Let us courageously resource this vital expansion, turning a logistical challenge into a symbol of our soaring vision for ministry and outreach in Missouri City!
New Parking Lot
We are planning a crucial $650,000 investment to construct a new, 80-space paved parking lot at our CityRise Missouri City campus. This improvement is a direct response to God's incredible blessing of growth. This campus’s community has flourished from 75 people to over 350 each weekend. The need is tangible and urgent, as nearly 50 vehicles are forced to park on the grass. This is more than asphalt and lines—it’s a foundational investment in the future of our ministry. By creating welcoming and accessible space, we ensure that every person God calls to this vibrant, growing family finds a clear "pathway" in. Let us courageously resource this vital expansion, turning a logistical challenge into a symbol of our soaring vision for ministry and outreach in Missouri City!


Endorsement from Dr. Mark Edworthy, Missouri City Campus Pastor
When visitors arrive at a church, they are hoping to easily park and make their way into the service. At CityRise Missouri City, we have seen such growth that 50-60 cars have been forced to park on the grass or on an adjacent property’s parking lot. This can be a nuisance, and for visitors, they may decide to simply keep driving. The proposed lot will signal the campus’s response to growth and focus upon the future and the new families that God will lead to CRMC. Access to our buildings will signal access to our programs and to our church family. When the dust settles, a welcoming parking lot will further communicate that our campus is ready to receive our neighbors and help them to feel at home.
Endorsement from Julissa Chappell, Missouri City Church Member
As both a member of CityRise Missouri City and a staff member at Casa El Buen Samaritano, I’ve seen firsthand how limited parking hinders ministry. During clinic nights, Sunday services, and outreach events, finding a spot is a struggle. Patients who’ve made decisions of faith have and then try to attend church are left discouraged when no parking is available. Family members I’ve invited have had similar experiences, with poor parking leaving a negative first impression. During rainy seasons, parking on the grass becomes nearly impossible, and I’ve had to replace flat tires on multiple occasions from hidden debris. Medical volunteers often have to park at the back of the church and walk to their vehicles late on clinic nights. Despite having security, they often have to walk alone in poorly lit areas. A new parking lot isn’t just a convenience—it’s a ministry tool that removes barriers and helps people feel welcome, safe, and supported at CRMC.
When visitors arrive at a church, they are hoping to easily park and make their way into the service. At CityRise Missouri City, we have seen such growth that 50-60 cars have been forced to park on the grass or on an adjacent property’s parking lot. This can be a nuisance, and for visitors, they may decide to simply keep driving. The proposed lot will signal the campus’s response to growth and focus upon the future and the new families that God will lead to CRMC. Access to our buildings will signal access to our programs and to our church family. When the dust settles, a welcoming parking lot will further communicate that our campus is ready to receive our neighbors and help them to feel at home.
Endorsement from Julissa Chappell, Missouri City Church Member
As both a member of CityRise Missouri City and a staff member at Casa El Buen Samaritano, I’ve seen firsthand how limited parking hinders ministry. During clinic nights, Sunday services, and outreach events, finding a spot is a struggle. Patients who’ve made decisions of faith have and then try to attend church are left discouraged when no parking is available. Family members I’ve invited have had similar experiences, with poor parking leaving a negative first impression. During rainy seasons, parking on the grass becomes nearly impossible, and I’ve had to replace flat tires on multiple occasions from hidden debris. Medical volunteers often have to park at the back of the church and walk to their vehicles late on clinic nights. Despite having security, they often have to walk alone in poorly lit areas. A new parking lot isn’t just a convenience—it’s a ministry tool that removes barriers and helps people feel welcome, safe, and supported at CRMC.
Recent
Archive
2026
January
40 Days of Faith: Day 1A Note from Pastor Roger40 Days of Faith: Day 2Three Ways Satan Tries to Attack You40 Days of Faith: Day 340 Days of Faith: Day 440 Days of Faith: Day 5Because You Give: Year in ReviewFaith That Offers Its Best: Lessons From Cain and Abel40 Days of Faith: Day 640 Days of Faith: Day 740 Days of Faith: Day 8God-Sized DreamsA Note from Pastor Roger40 Days of Faith: Day 940 Days of Faith: Day 1040 Days of Faith: Day 11Because You Give: Christmas Eve Recap40 Days of Faith: Day 12Walking With God: The Life and Legacy of Enoch40 Days of Faith: Day 13Pathways Create: West U Baptist Children's RenovationPathways Create: Missouri City Parking LotPathways Create: CityRise BellairePathways Create: West U Baptist PlaygroundsPathways Create: West U Baptist GalleryPathways Create: Missouri City Building RenovationPathways Create: West U Baptist SanctuaryPathways Create: West U Baptist Choir SuitePathways Create: West U Baptist Teaching TheaterPathways Create: West U Baptist Fowler ChapelPathways Create: West U Baptist Access Ramp and Front PlaygroundPathways Extend: Neighbors & NationsPathways Honor: Centennial Gift40 Days of Faith: Day 14Firstfruits GivingHow to Walk in Faith40 Days of Faith: Day 15Standing on Their ShouldersA Note from Pastor RogerPaying it Forward40 Days of Faith: Day 1640 Days of Faith: Day 1740 Days of Faith: Day 18Because You Give: Discipleship UThe Heart Behind GivingCommunity and GenerosityTest Me in ThisMultiplying GenerosityInvesting in What is Next40 Days of Faith: Day 19The Power of a Meal40 Days of Faith: Day 2040 Days of Faith: Day 21A Note from Pastor RogerHow to Have Faith That is Certain40 Days of Faith: Day 2240 Days of Faith: Day 23January 25 Services: Online Only & Pathways Kicks Off40 Days of Faith: Day 24How to Watch CityRise Online This MorningBecause You Give: Kids Ministry40 Days of Faith: Day 25The Pathway of Legacy40 Days of Faith: Day 2640 Days of Faith: Day 2740 Days of Faith: Day 28A Note from Pastor Roger40 Days of Faith: Day 2940 Days of Faith: Day 3040 Days of Faith: Day 31
February
40 Days of Faith: Day 3240 Days of Faith: Day 33The Pathway of Planning40 Days of Faith: Day 3440 Days of Faith: Day 35The Right Way to PlanA Note from Pastor Roger40 Days of Faith: Day 3640 Days of Faith: Day 3740 Days of Faith: Day 38Because You Give: Kenya Mission Trip40 Days of Faith: Day 3940 Days of Faith: Day 40A Note from Pastor RogerHow to Move From Planning to ActionBecause You Give: Student MinistryThe Pathway of Authentic LeadershipA Note from Pastor RogerBecause You Give: Women's RetreatThe Pathway of Joyful WorshipHow to Be Guided by GodA Note from Pastor Roger
2025
January

No Comments