Pathways Create: Missouri City Building Renovation

CityRise Missouri City has reached a pivotal moment. Rapid growth and facility challenges have created urgent needs that must be addressed for the campus to keep reaching its community effectively. Two major projects will allow us to meet these needs and create the space required for continued gospel impact. One project focuses on a long awaited campus improvement.
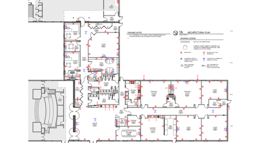
Building Renovation
At CityRise Missouri City, we are already rebuilding and renovating the two-thirds of the campus currently shut down due to a major insurance claim. More than merely restoring old structures, this is about pioneering new ministry space, rebuilding the facilities not as they were in 1984 but as we need them today to serve our growing, multi-lingual congregation. Our Community is currently "stuck" in a fraction of the campus, which limits our capacity for ministry. We face this challenge with both patience and bold faith, refusing to let an obstacle—even a frustrating insurance battle—limit our mission. We plan to turn unusable space into a powerful new engine for ministry, ensuring that every corner of our campus is deployed for the gospel and ready to house the generations of believers yet to come
Building Renovation
At CityRise Missouri City, we are already rebuilding and renovating the two-thirds of the campus currently shut down due to a major insurance claim. More than merely restoring old structures, this is about pioneering new ministry space, rebuilding the facilities not as they were in 1984 but as we need them today to serve our growing, multi-lingual congregation. Our Community is currently "stuck" in a fraction of the campus, which limits our capacity for ministry. We face this challenge with both patience and bold faith, refusing to let an obstacle—even a frustrating insurance battle—limit our mission. We plan to turn unusable space into a powerful new engine for ministry, ensuring that every corner of our campus is deployed for the gospel and ready to house the generations of believers yet to come

Endorsement from Justo Robinson, Español Pastor
Almost three years ago, the main building of the CityRise Missouri City campus was flooded. As the pastor of the CityRise Missouri City Español congregation, I support the proposal and will encourage all members to support it also. The church will be in a better position to “lift the city and the world by generously giving the gospel of Jesus Christ” as soon as we can get the building repaired and utilized as it was supposed to be.
Endorsement from Ana Segura, Missouri City Español Church Member
As a leader at CityRise Missouri City Español, Community Group teacher, and lifelong member of this church, this place has always been home to me. I grew up within these walls, learning about God’s love, building lifelong friendships, and watching our church family grow and serve our community. When our building flooded nearly three years ago, it was heartbreaking to see so many parts of our church damaged. Since then, the long insurance process has delayed restoration, leaving many areas in need of repair, especially those used for our children’s ministry. Our ministries have remained faithful and strong, a testament to the resilience of our congregation and the grace of God. As a Community Group teacher, I see the importance of creating safe, welcoming classrooms for our children and families. As part of the media team, I also understand the need for secure spaces to protect and store our equipment. This is why I fully support the CRMC Rebuild and Renovation proposal. This project is not just about rebuilding walls; it is about strengthening our ministries and preparing CRMC to continue serving with excellence for generations to come.
Almost three years ago, the main building of the CityRise Missouri City campus was flooded. As the pastor of the CityRise Missouri City Español congregation, I support the proposal and will encourage all members to support it also. The church will be in a better position to “lift the city and the world by generously giving the gospel of Jesus Christ” as soon as we can get the building repaired and utilized as it was supposed to be.
Endorsement from Ana Segura, Missouri City Español Church Member
As a leader at CityRise Missouri City Español, Community Group teacher, and lifelong member of this church, this place has always been home to me. I grew up within these walls, learning about God’s love, building lifelong friendships, and watching our church family grow and serve our community. When our building flooded nearly three years ago, it was heartbreaking to see so many parts of our church damaged. Since then, the long insurance process has delayed restoration, leaving many areas in need of repair, especially those used for our children’s ministry. Our ministries have remained faithful and strong, a testament to the resilience of our congregation and the grace of God. As a Community Group teacher, I see the importance of creating safe, welcoming classrooms for our children and families. As part of the media team, I also understand the need for secure spaces to protect and store our equipment. This is why I fully support the CRMC Rebuild and Renovation proposal. This project is not just about rebuilding walls; it is about strengthening our ministries and preparing CRMC to continue serving with excellence for generations to come.
Recent
Archive
2026
January
40 Days of Faith: Day 1A Note from Pastor Roger40 Days of Faith: Day 2Three Ways Satan Tries to Attack You40 Days of Faith: Day 340 Days of Faith: Day 440 Days of Faith: Day 5Because You Give: Year in ReviewFaith That Offers Its Best: Lessons From Cain and Abel40 Days of Faith: Day 640 Days of Faith: Day 740 Days of Faith: Day 8God-Sized DreamsA Note from Pastor Roger40 Days of Faith: Day 940 Days of Faith: Day 1040 Days of Faith: Day 11Because You Give: Christmas Eve Recap40 Days of Faith: Day 12Walking With God: The Life and Legacy of Enoch40 Days of Faith: Day 13Pathways Create: West U Baptist Children's RenovationPathways Create: Missouri City Parking LotPathways Create: CityRise BellairePathways Create: West U Baptist PlaygroundsPathways Create: West U Baptist GalleryPathways Create: Missouri City Building RenovationPathways Create: West U Baptist SanctuaryPathways Create: West U Baptist Choir SuitePathways Create: West U Baptist Teaching TheaterPathways Create: West U Baptist Fowler ChapelPathways Create: West U Baptist Access Ramp and Front PlaygroundPathways Extend: Neighbors & NationsPathways Honor: Centennial Gift40 Days of Faith: Day 14Firstfruits GivingHow to Walk in Faith40 Days of Faith: Day 15Standing on Their ShouldersA Note from Pastor RogerPaying it Forward40 Days of Faith: Day 1640 Days of Faith: Day 1740 Days of Faith: Day 18Because You Give: Discipleship UThe Heart Behind GivingCommunity and GenerosityTest Me in ThisMultiplying GenerosityInvesting in What is Next40 Days of Faith: Day 19The Power of a Meal40 Days of Faith: Day 2040 Days of Faith: Day 21A Note from Pastor RogerHow to Have Faith That is Certain40 Days of Faith: Day 2240 Days of Faith: Day 23January 25 Services: Online Only & Pathways Kicks Off40 Days of Faith: Day 24How to Watch CityRise Online This MorningBecause You Give: Kids Ministry40 Days of Faith: Day 25The Pathway of Legacy40 Days of Faith: Day 2640 Days of Faith: Day 2740 Days of Faith: Day 28A Note from Pastor Roger40 Days of Faith: Day 2940 Days of Faith: Day 3040 Days of Faith: Day 31
February
40 Days of Faith: Day 3240 Days of Faith: Day 33The Pathway of Planning40 Days of Faith: Day 3440 Days of Faith: Day 35The Right Way to PlanA Note from Pastor Roger40 Days of Faith: Day 3640 Days of Faith: Day 3740 Days of Faith: Day 38Because You Give: Kenya Mission Trip40 Days of Faith: Day 3940 Days of Faith: Day 40A Note from Pastor RogerHow to Move From Planning to ActionBecause You Give: Student MinistryThe Pathway of Authentic LeadershipA Note from Pastor RogerBecause You Give: Women's Retreat
2025

No Comments